Objekt Nr.: PB-BI-1183
Kaufpreis:
282.096 €
5.950,00 € inkl. 19 % MwSt. je Wohneinheit
Wohnungstyp: Erdgeschoss
Baujahr: 2026

Details
Zimmeranzahl: 3
Schlafzimmer: 2
Badezimmer: 1
Terrassen: 1
Ausstattunsgmerkmale
- KfW 40
- Erdgeschoss
- Terrasse mit eigenem Gartenanteil
- Abstellraum
- Tageslichtbad mit Dusche
- zentrumsnahe Lage
- Fahrstuhl bis in die Tiefgarage
- Tiefgaragenstellplatz mit Wallbox zusätzlich erwerbbar für 15.000, €
- Fertigstellung 2026
- Schlüsselfertig inkl. Bodenbeläge und Malerarbeiten
- LuftWasserWärmepumpe
- Photovoltaikanlage
- dezentrale Lüftungsanlage
- Fußbodenheizung
- Schüco Fenster 3fachverglast
- elektrische Rollläden
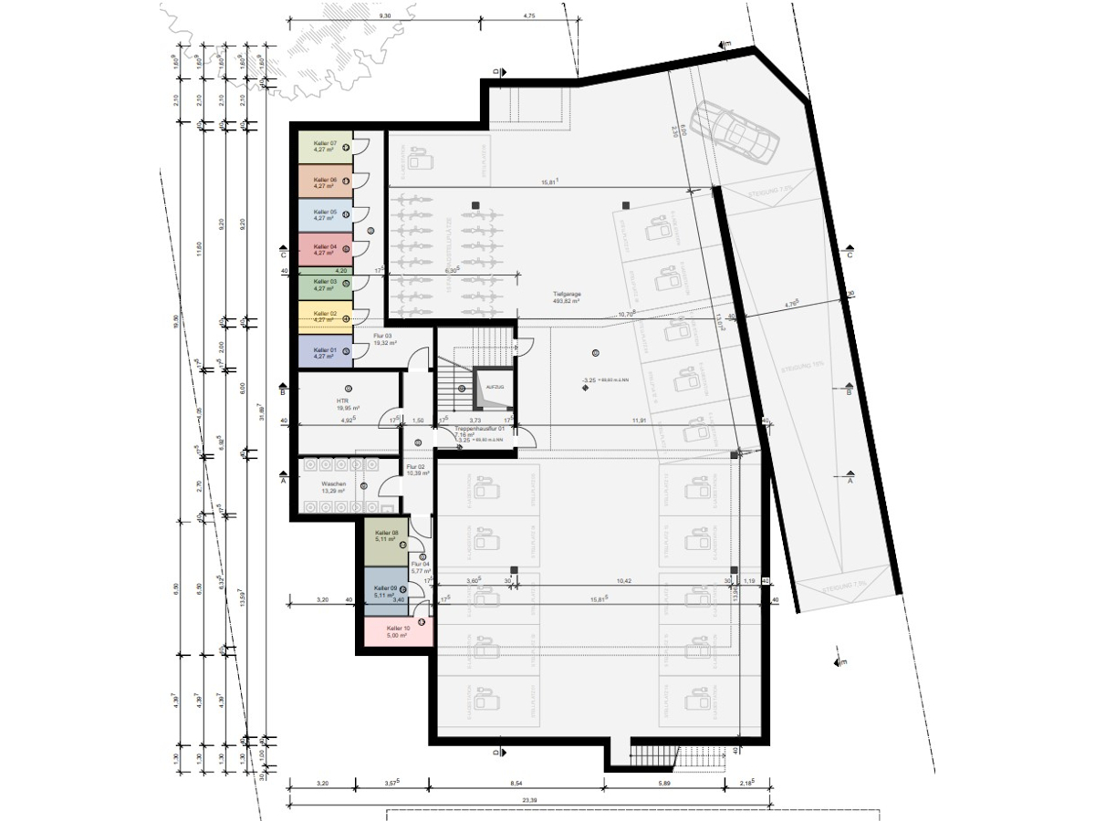
- Kellerraum für jede Wohneinheit
- gemeinsamer Waschkeller
- gemeinsamer Fahrradkeller
- Wallbox
- PVAnlage
Zustand & Energieausweis
Zustand: Erstbezug
Energieausweis:
Jahrgang: Nicht nötig
Erdgeschoss-Neubauwohnung mit Garten, Energieeffiziente KFW40 Ausführung!
Objektbeschreibung
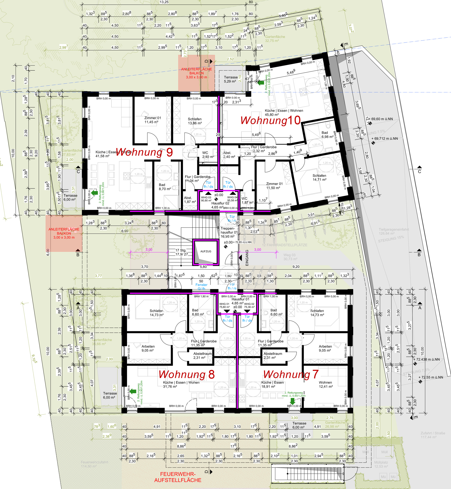
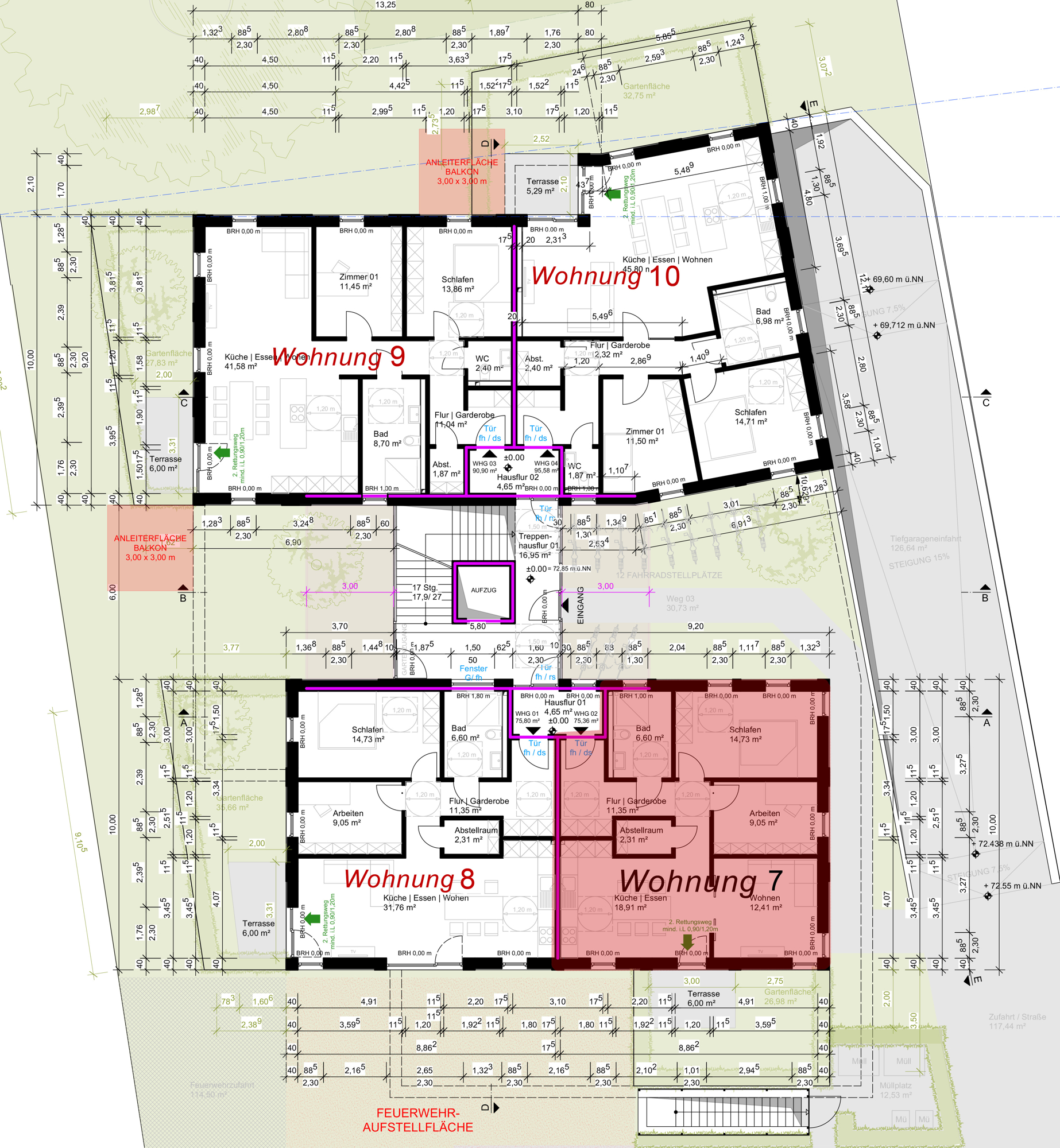
Diese schöne Eigentumswohnung wird in massiver Bauweise im Erdgeschoss eines hochwertigen 10 Familienhauses in attraktiver Lage von Herford errichtet. In unmittelbarer Umgebung stehen Ihnen alle Dinge des täglichen Lebens, wie Einkaufsmöglichkeiten, Schulen, Kindergärten oder Ärzte, zur Verfügung.
Die Wohnung bietet Ihnen eine Wohnfläche von 78,36 m², die sich auf zwei Schlafzimmer, ein geräumiges und lichtdurchflutetes Wohn- und Esszimmer mit offener Küche, ein Tageslichtbad mit Dusche, einen Abstellraum und einen Flur mit Garderobe aufteilt. Das Highlight der Wohnung ist die Terrasse in Süd-Ausrichtung mit eigenem Gartenanteil, die zu gemütlichen Stunden in der Sonne einlädt. Abgerundet wird das Angebot durch den zugehörigen Tiefgaragenstellplatz mit Wallbox und den Kellerraum. Zusätzlich stehen den Bewohnern des Hauses ein gemeinschaftlicher Waschkeller sowie ein gemeinsamer Fahrradkeller zur Verfügung. Die barrierearme Immobilie ist bis in die Tiefgarage komplett durch den Fahrstuhl erschlossen.
Die Immobilie wird nach hochenergetischem KfW 40 Standard errichtet. Fertigstellung ist derzeit für März 2026 geplant. Die Wohnung wird schlüsselfertig inkl. Malerarbeiten und Bodenbelägen übergeben. Die hochwertige Ausstattung umfasst unter Anderem die moderne Beheizung über die Luft-Wasser-Wärmepumpe mit Fußbodenheizung, die Photovoltaikanlage, die 3-fach verglasten SCHÜCO Fenster mit elektrischen Rollläden und die dezentrale Lüftungsanlage.
Abweichende Ausstattungen und Bodenbeläge können vor Fertigstellung (ggf. gegen Aufpreis) mit dem Bauträger abgestimmt werden.
Sind Sie neugierig geworden? Dann vereinbaren Sie gerne einen Beratungstermin mit uns!
Lage
Die Stadt Herford gehört zum ostwestfälischen Verdichtungsgebiet, das sich von Gütersloh über Bielefeld bis Minden erstreckt. Die Stadt liegt im Ravensberger Hügelland zwischen Teutoburger Wald und Wiehengebirge, 15 Kilometer nordöstlich von Bielefeld und 46 Kilometer östlich von Osnabrück.
Herford verfügt über mehrere Einkaufszentren mit allen erdenklichen Shopping-Möglichkeiten sowie über eine ansprechende Innenstadt. Hier finden sich ebenso diverse Einkehrmöglichkeiten wie Restaurants, Cafés oder Bars.
Die Landschaft vor den Toren Herfords bietet beste Voraussetzungen für interessante Ausflüge, genussvolle Radtouren und abwechslungsreiche Wanderungen.
Herford ist ein wichtiger Wirtschaftsstandort, was auch auf die günstige Verkehrslage im Straßen- und Eisenbahnnetz zurückzuführen ist.
Der Hauptbahnhof Herford ebenso wie die Anbindung an die Autobahnen 2 und 30 sorgen für eine optimale Anbindung Herfords in alle Himmelsrichtungen.
Details MOBILE
Zimmeranzahl: 3
Schlafzimmer: 2
Badezimmer: 1
Terrassen: 1
Ausstattunsgmerkmale
- KfW 40
- Erdgeschoss
- Terrasse mit eigenem Gartenanteil
- Abstellraum
- Tageslichtbad mit Dusche
- zentrumsnahe Lage
- Fahrstuhl bis in die Tiefgarage
- Tiefgaragenstellplatz mit Wallbox zusätzlich erwerbbar für 15.000, €
- Fertigstellung 2026
- Schlüsselfertig inkl. Bodenbeläge und Malerarbeiten
- LuftWasserWärmepumpe
- Photovoltaikanlage
- dezentrale Lüftungsanlage
- Fußbodenheizung
- Schüco Fenster 3fachverglast
- elektrische Rollläden
- Kellerraum für jede Wohneinheit
- gemeinsamer Waschkeller
- gemeinsamer Fahrradkeller
- Wallbox
- PVAnlage
Zustand & Energieausweis
Zustand: Erstbezug
Energieausweis:
Jahrgang: Nicht nötig
Drei gute Gründe für Flöttmann Immobilien

Unsere Basis für Vertrauen:
Fairness und Transparenz sind für uns wichtige Werte für eine vertrauensvolle Zusammenarbeit, die sich im Umgang, dem Preis, den Verträgen und in unserem täglichen Handeln widerspiegeln.

Das rundum sorglos Paket:
Wir begleiten Sie umfassend von der Suche bis über den Kauf hinaus. Profitieren Sie von unserem großen Netzwerk aus Experten für Finanzierungsanfragen, Renovierungsarbeiten, Architekten und vielem mehr. Wir sind immer an Ihrer Seite.

Ausgebildete Ansprechpartner mit Expertise:
All unsere Verkäufer sind erfahrene Immobilienkaufleute mit mehrjähriger Ausbildung. Darüber hinaus haben sie hochwertige Weiterbildungsmaßnahmen absolviert, die sie zu Fachleuten auf verschiedenen Gebieten machen. Wir tauschen regelmäßig dieses Wissen aus, damit Sie von der gesamten Stärke des Teams profitieren können.

Wie dürfen wir Ihnen weiterhelfen?
Rufen Sie uns gerne an! Unser Team beantwortet Ihnen gerne Ihre Fragen!